所沢市東所沢和田3丁目・全11棟 新築一戸建 4号棟

4,780万円

埼玉県所沢市東所沢和田3丁目

武蔵野線「東所沢」駅徒歩15分

武蔵野線「東所沢」駅バス2分西武バス「和田安松」停歩8分

西武池袋線「所沢」駅バス10分西武バス「和田安松」停歩8分

価格
4,780万円
間取り/建物面積
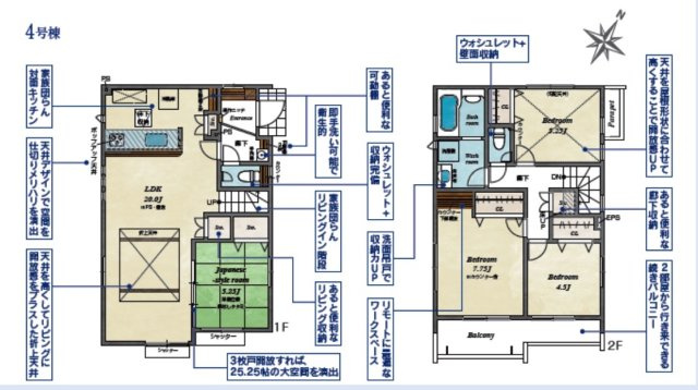
4LDK/100.19㎡
所在地
埼玉県所沢市東所沢和田3丁目
築年
2025年11月(新築)
駐車
有(2台)
交通

武蔵野線東所沢」駅 徒歩15分

武蔵野線東所沢」駅 バス2分 西武バス「和田安松」 停歩8分

西武池袋線所沢」駅 バス10分 西武バス「和田安松」 停歩8分

所沢市東所沢和田3丁目・全11棟 新築一戸建 4号棟の基本情報

物件名
所沢市東所沢和田3丁目・全11棟 新築一戸建 4号棟
価格
4,780万円
建物面積
100.19㎡
土地面積
38.47坪(127.20㎡)
築年月
2025年11月(新築)
総戸数
11戸
所在地
埼玉県所沢市東所沢和田3丁目
交通

武蔵野線東所沢」駅 徒歩15分

武蔵野線東所沢」駅 バス2分 西武バス「和田安松」 停歩8分

西武池袋線所沢」駅 バス10分 西武バス「和田安松」 停歩8分

所沢市東所沢和田3丁目・全11棟 新築一戸建 4号棟の詳細情報

設備条件
  • 駐車2台可
設備(その他)
    -
駐車場/月額
有(2台)/0円
土地権利
所有権
国土法届出
不要
用途地域
第一種中高層住居専用/第一種住居
取引態様
仲介
引渡し
即時

所沢市東所沢和田3丁目・全11棟 新築一戸建 4号棟で募集中の物件

  1. ~LDK20帖~

    30.30坪 (100.19㎡)

    4,780万円(124.25万円/坪)

周辺施設

  • ファミリーマート東所沢和田店の画像

    コンビニエンスストア

    ファミリーマート東所沢和田店

    10m(1分)

  • 所沢市立 東所沢保育園の画像

    保育園

    所沢市立 東所沢保育園

    200m(3分)

  • ベルク東所沢店の画像

    スーパー

    ベルク東所沢店

    260m(4分)

  • ビッグ・エー東所沢店の画像

    スーパー

    ビッグ・エー東所沢店

    480m(6分)

  • 和田西公園の画像

    公園

    和田西公園

    500m(7分)

  • 所沢市立 安松中学校の画像

    中学校

    所沢市立 安松中学校

    720m(9分)

  • 東所沢公園の画像

    公園

    東所沢公園

    760m(10分)

  • 所沢市立 和田小学校の画像

    小学校

    所沢市立 和田小学校

    800m(10分)

  • ヤオコー 東所沢店の画像

    スーパー

    ヤオコー 東所沢店

    830m(11分)

  • 所沢第一病院の画像

    総合病院

    所沢第一病院

    850m(11分)

  • 慈光幼稚園の画像

    幼稚園

    慈光幼稚園

    1620m(21分)

近隣の物件

  1. 所沢市大字山口

    3LDK (95.23㎡)

    4,980万円

  2. 所沢市泉町

    4LDK (107.64㎡)

    5,999万円

  3. 所沢市大字上安松

    4SLDK (102.26㎡)

    3,980万円

  4. 所沢市大字下富

    3SLDK (89.50㎡)

    2,790万円

所沢市東所沢和田3丁目・全11棟 新築一戸建 4号棟

お気軽にお問い合わせください

無料お問い合わせ

株式会社アクシアホーム

04-2937-3330

09:00~18:30

(休:水曜日(不定休日あり))