所沢市下安松・全11棟 新築一戸建 9号棟

4,398万円

埼玉県所沢市大字下安松

西武池袋線「秋津」駅徒歩19分

武蔵野線「東所沢」駅徒歩21分

西武池袋線「所沢」駅バス13分西武バス「柳瀬川」停歩7分

価格
4,398万円
間取り/建物面積
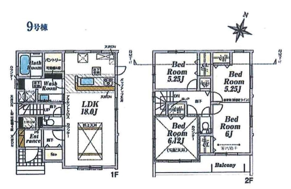
3LDK/103.90㎡
所在地
埼玉県所沢市大字下安松
築年
2025年12月(新築)
駐車
有(2台)
交通

西武池袋線秋津」駅 徒歩19分

武蔵野線東所沢」駅 徒歩21分

西武池袋線所沢」駅 バス13分 西武バス「柳瀬川」 停歩7分

所沢市下安松・全11棟 新築一戸建 9号棟の基本情報

物件名
所沢市下安松・全11棟 新築一戸建 9号棟
価格
4,398万円
建物面積
103.90㎡
土地面積
31.43坪(103.92㎡)
築年月
2025年12月(新築)
総戸数
11戸
所在地
埼玉県所沢市大字下安松
交通

西武池袋線秋津」駅 徒歩19分

武蔵野線東所沢」駅 徒歩21分

西武池袋線所沢」駅 バス13分 西武バス「柳瀬川」 停歩7分

所沢市下安松・全11棟 新築一戸建 9号棟の詳細情報

設備条件
  • 住宅性能保証付
  • 駐車2台可
設備(その他)
    -
駐車場/月額
有(2台)/0円
土地権利
所有権
国土法届出
不要
用途地域
第一種低層住居専用
取引態様
仲介
引渡し
即時

所沢市下安松・全11棟 新築一戸建 9号棟で募集中の物件

  1. ~LDK18帖~

    31.42坪 (103.90㎡)

    4,398万円(139.93万円/坪)

周辺施設

  • 清流公園の画像

    公園

    清流公園

    620m(8分)

  • 桂木公園の画像

    公園

    桂木公園

    750m(10分)

  • 太陽園の画像

    保育園

    太陽園

    810m(11分)

  • 所沢市立 安松小学校の画像

    小学校

    所沢市立 安松小学校

    830m(11分)

  • 慈光幼稚園の画像

    幼稚園

    慈光幼稚園

    990m(13分)

  • マイカイマート東所沢店の画像

    スーパー

    マイカイマート東所沢店

    1170m(15分)

  • 業務スーパー東所沢店の画像

    スーパー

    業務スーパー東所沢店

    1280m(16分)

  • 山本病院の画像

    総合病院

    山本病院

    1420m(18分)

  • いなげや 秋津駅前店の画像

    スーパー

    いなげや 秋津駅前店

    1450m(19分)

  • 所沢市立 安松中学校の画像

    中学校

    所沢市立 安松中学校

    1500m(19分)

  • むらせ医院の画像

    内科

    むらせ医院

    1520m(19分)

  • 所沢第一病院の画像

    総合病院

    所沢第一病院

    1520m(19分)

  • エミオ秋津の画像

    ショッピングセンター

    エミオ秋津

    1590m(20分)

近隣の物件

  1. 所沢市和ケ原2丁目

    4LDK (105.57㎡)

    4,299万円

  2. 所沢市大字久米

    3SLDK (102.44㎡)

    4,190万円

  3. 所沢市大字久米

    3LDK (102.06㎡)

    4,090万円

  4. 所沢市三ケ島5丁目

    4LDK (104.75㎡)

    3,899万円

所沢市下安松・全11棟 新築一戸建 9号棟

お気軽にお問い合わせください

無料お問い合わせ

株式会社アクシアホーム

04-2937-3330

09:00~18:30

(休:水曜日(不定休日あり))