【外観】建物完成致しました!!是非この機会にご見学下さいませ。
- 価格
- 4,780万円
- 間取り
- 3LDK
- 土地面積
- 124.30㎡
- 建物面積
- 109.36㎡
- 築年月
- 2025年9月(新築)
-
室内洗濯機置場
-
TVモニタ付きインターホン
-
カウンターキッチン
-
浴室乾燥機

リビング
キッチン
風呂
寝室
玄関- 販売戸数
- -
- 総戸数
- 1戸
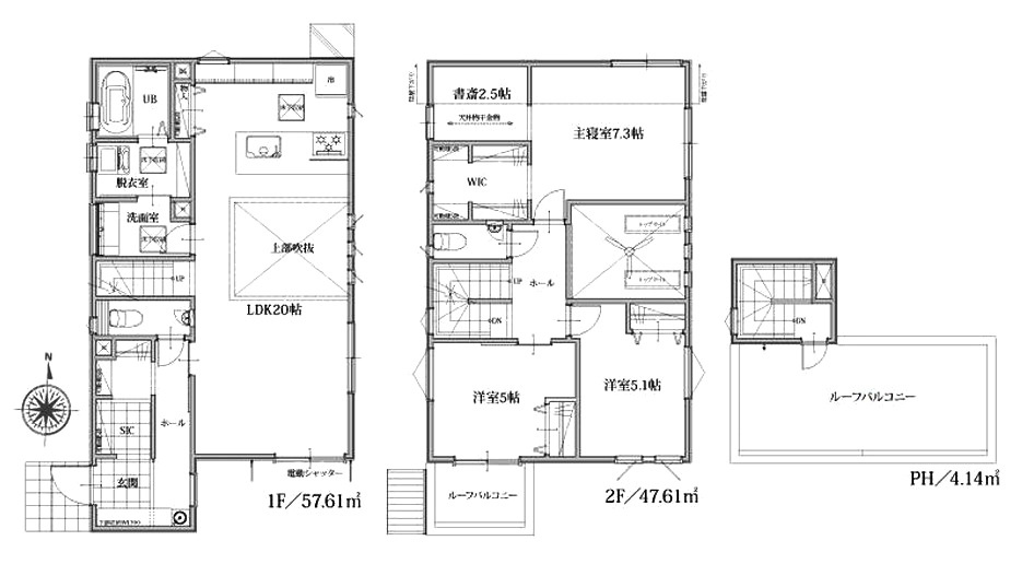
- 間取り / 詳細
- 3LDK
LDK 20.0帖 1室/洋室 7.3帖 1室/洋室 5.1帖 1室/洋室 5.0帖 1室 - 向き
- 南
- 建物面積(坪数)
- 109.36㎡(33.08坪)
- 土地面積(坪数)
- 124.30㎡(37.60坪)
- 建ぺい率 /
容積率 - 60%/100%
- 築年月
- 2025年9月(新築)
- 駐車場 /
月額料金 - 有(2台) 0円
- 土地権利
- 所有権
- 土地
(敷金 / 保証金) - - / -
- 建物構造
- 木造 / 2階建
- 傾斜地部分面積
- -
- 路地状敷地
- -
- 私道負担面積
- -
- セットバック
- 無
- 高圧線下面積
- -
- 施工会社
- -
- 用途地域
- 第一種低層住居専用
- 地目 / 地勢
- 畑 / 平坦
- 接道状況
- 一方(西 公道 6.0m)
- 国土法届出要否
- 不要
- 都市計画
- 市街化区域
- 総区画数 /
販売区画数 - 1区画/-
- 現況
- 完成済み
- その他
法令上の制限 - 準防火地域/第二上新井地区地区計画
- 取引態様
- 仲介
- 引渡し
- 即時
- 取引条件の
有効期限 - 2026年02月15日
- 設備条件
-
- 閑静な住宅地 / バリアフリー / 室内洗濯機置場 / バルコニー / ルーフバルコニー / 都市ガス / 公営水道 / 公共下水 / 電気有 / 駐車2台可 / ガスコンロ / コンロ2口以上 / システムキッチン / カウンターキッチン / コンロ3口 / 追焚機能浴室 / 浴室乾燥機 / 温水洗浄便座 / 洗髪洗面化粧台 / トイレ2ヶ所 / 浴室1坪以上 / 床下収納 / ウォークインクロゼット / ウォークインシューズクロゼット / TVモニタ付インターホン / 複層ガラス / 住戸内覧可能
- 設備(その他)
-
-
-
- 物件番号
- 97833806
- 管理コード
- 100135927167
- 建築確認番号
- 第SJK-KX245517700号
- 情報更新日
- 2026年02月01日
- 次回更新予定日
- 2026年02月15日
- 取扱会社
-
- 株式会社アクシアホーム
- 埼玉県所沢市金山町18番地5
- TEL:04-2937-3330
- 埼玉県知事 (4) 第21457号
- 公益社団法人 全日本不動産協会
財団法人 住宅保証機構
社団法人 首都圏不動産公正取引協議会
- 備考
- ※別途ごみ置場持分約2.01平米×1/7あり
《詳細についてはお気軽にお問合せくださいませ》
2025年9月15日公開 -
コンビニエンスストア
ミニストップ 所沢上新井店
200m(3分)
-
公園
上新井公園
310m(4分)
-
公園
上新井あらく公園
320m(4分)
-
公園
上新井西前公園
350m(5分)
-
スーパー
マミーマート 所沢山口店
500m(7分)
-
小学校
所沢市立 上新井小学校
550m(7分)
-
家電製品
ノジマ所沢本店
570m(8分)
-
保育園
北野保育園
650m(9分)
-
保育園
所沢市立西所沢保育園
1180m(15分)
-
幼稚園
所沢若草幼稚園
1200m(15分)
-
スーパー
オザム けやき台店
1370m(18分)
-
スーパー
ヨークフーズ小手指店
1530m(20分)
-
幼稚園
新所沢こひつじ幼稚園
1530m(20分)
-
ディスカウントショップ
ドン・キホーテ 所沢宮本町店
1570m(20分)
-
総合病院
佐々木記念病院
1670m(21分)
-
中学校
所沢市立 小手指中学校
1800m(23分)
- 月々の支払額
- 9.6円
- 購入希望物件価格
-
万円
- 頭金
-
万円
- 金利
-
%
- 返済額(ボーナス1回分)
-
万円
- 返済期間
-
年
物件の特徴
セールスポイント
天井からの自然光を取り込む開放感あふれるリビング吹抜け♪
■LDK広々20帖
■洗面室と脱衣室が分かれた間取り
■高級感あるペニンシュラ型キッチン
■大容量のWIC・SICあり
■テレワークにも使える書斎2.5帖
■机や椅子が置けるルーフバルコニー
■カースペース縦列2台分
■小学校、スーパー徒歩7分の便利な立地
■税金の控除や金利の優遇が受けられる長期優良住宅
ポイント
所沢市立上新井小学校 所沢市立小手指中学校 新築 戸建て 西武池袋線 西所沢駅
担当者のコメント
パノラマ画像
基本情報
設備条件
その他
周辺施設
支払いシミュレーション
※ボーナスは自動で年2回分で計算されます。
所沢市上新井2丁目・全1棟 新築一戸建 ~リビング吹抜け~
4,780万円
-
3LDK(109.36㎡)
店長・富澤 和晋
収納も豊富なので、お部屋をすっきり整理整頓できますよ♪
まずは現地をご覧いただきながら詳しいご説明をさせていただければと思います。
お問い合わせお待ちしております。