狭山市北入曽・全2棟 新築一戸建 1号棟 ~LDK18.5帖~

3,249万円

埼玉県狭山市大字北入曽

西武新宿線「入曽」駅徒歩24分

西武新宿線「狭山市」駅バス12分西武バス「狭山台南」停歩5分

西武池袋線「稲荷山公園」駅

価格
3,249万円
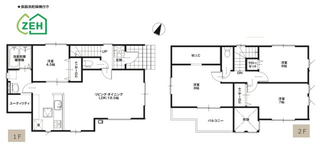
間取り/建物面積
4LDK/107.00㎡
所在地
埼玉県狭山市大字北入曽
築年
2025年6月(新築)
駐車
有(2台)
交通

西武新宿線入曽」駅 徒歩24分

西武新宿線狭山市」駅 バス12分 西武バス「狭山台南」 停歩5分

西武池袋線稲荷山公園」駅 車15分 4.8km

狭山市北入曽・全2棟 新築一戸建 1号棟 ~LDK18.5帖~の基本情報

物件名
狭山市北入曽・全2棟 新築一戸建 1号棟 ~LDK18.5帖~
価格
3,249万円
建物面積
107.00㎡
土地面積
40.68坪(134.50㎡)
築年月
2025年6月(新築)
総戸数
2戸
所在地
埼玉県狭山市大字北入曽
交通

西武新宿線入曽」駅 徒歩24分

西武新宿線狭山市」駅 バス12分 西武バス「狭山台南」 停歩5分

西武池袋線稲荷山公園」駅 車15分 4.8km

狭山市北入曽・全2棟 新築一戸建 1号棟 ~LDK18.5帖~の詳細情報

設備条件
  • 閑静な住宅地
  • 駐車2台可
設備(その他)
    -
駐車場/月額
有(2台)/0円
土地権利
所有権
国土法届出
不要
用途地域
第一種低層住居専用
取引態様
仲介
引渡し
即時

狭山市北入曽・全2棟 新築一戸建 1号棟 ~LDK18.5帖~で募集中の物件

  1. 32.36坪 (107.00㎡)

    3,249万円(79.87万円/坪)

周辺施設

  • ウエルシア狭山北入曽店の画像

    ドラッグストア

    ウエルシア狭山北入曽店

    300m(4分)

  • ファミリーマート狭山台南店の画像

    コンビニエンスストア

    ファミリーマート狭山台南店

    300m(4分)

  • すずらん保育園(小規模保育施設)の画像

    保育園

    すずらん保育園(小規模保育施設)

    450m(6分)

  • 狭山市立 狭山台南保育所の画像

    保育園

    狭山市立 狭山台南保育所

    480m(6分)

  • セイジョー狭山台店の画像

    ドラッグストア

    セイジョー狭山台店

    500m(7分)

  • セキチューホームセンタ狭山店の画像

    ホームセンター

    セキチューホームセンタ狭山店

    570m(8分)

  • ともえクリニックの画像

    内科

    ともえクリニック

    590m(8分)

  • 未来たけのこ認定こども園の画像

    保育園

    未来たけのこ認定こども園

    600m(8分)

  • 入曽マーケットシティの画像

    スーパー

    入曽マーケットシティ

    750m(10分)

  • クルベ北入曽店の画像

    スーパー

    クルベ北入曽店

    800m(10分)

  • しいのみ幼稚園の画像

    幼稚園

    しいのみ幼稚園

    820m(11分)

  • 狭山市立 御狩場小学校の画像

    小学校

    狭山市立 御狩場小学校

    850m(11分)

  • 狭山北入曽郵便局の画像

    郵便局

    狭山北入曽郵便局

    890m(12分)

  • 中園医院の画像

    内科

    中園医院

    1020m(13分)

  • 狭山市立 山王中学校の画像

    中学校

    狭山市立 山王中学校

    1100m(14分)

  • 宮崎医院の画像

    内科

    宮崎医院

    1150m(15分)

  • 西武学園さやま幼稚園の画像

    幼稚園

    西武学園さやま幼稚園

    1320m(17分)

  • ジェーソン狭山入曽店の画像

    ディスカウントショップ

    ジェーソン狭山入曽店

    1330m(17分)

近隣の物件

  1. 狭山市大字北入曽

    4LDK (91.08㎡)

    2,990万円

  2. 狭山市大字東三ツ木

    3LDK (96.46㎡)

    3,530万円

  3. 狭山市大字東三ツ木

    4LDK (97.01㎡)

    3,800万円

  4. 狭山市大字北入曽

    4LDK (94.81㎡)

    3,490万円

狭山市北入曽・全2棟 新築一戸建 1号棟 ~LDK18.5帖~

お気軽にお問い合わせください

無料お問い合わせ

株式会社アクシアホーム

04-2937-3330

09:00~18:30

(休:水曜日(不定休日あり))