所沢市中新井5丁目・全2棟 新築一戸建 1号棟

3,680万円

埼玉県所沢市中新井5丁目

西武新宿線「新所沢」駅バス8分西武バス「ニュータウン中央」停歩3分

西武池袋線「所沢」駅バス15分西武バス「ニュータウン中央」停歩3分

西武新宿線「所沢」駅バス15分西武バス「ニュータウン中央」停歩3分

価格
3,680万円
間取り/建物面積
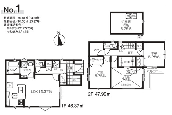
3LDK+S(納戸)/94.36㎡
所在地
埼玉県所沢市中新井5丁目
築年
2026年6月(予定)
駐車
有(1台)
交通

西武新宿線新所沢」駅 バス8分 西武バス「ニュータウン中央」 停歩3分

西武池袋線所沢」駅 バス15分 西武バス「ニュータウン中央」 停歩3分

西武新宿線所沢」駅 バス15分 西武バス「ニュータウン中央」 停歩3分

所沢市中新井5丁目・全2棟 新築一戸建 1号棟の基本情報

物件名
所沢市中新井5丁目・全2棟 新築一戸建 1号棟
価格
3,680万円
建物面積
94.36㎡
土地面積
29.59坪(97.84㎡)
築年月
2026年6月(予定)
総戸数
2戸
所在地
埼玉県所沢市中新井5丁目
交通

西武新宿線新所沢」駅 バス8分 西武バス「ニュータウン中央」 停歩3分

西武池袋線所沢」駅 バス15分 西武バス「ニュータウン中央」 停歩3分

西武新宿線所沢」駅 バス15分 西武バス「ニュータウン中央」 停歩3分

所沢市中新井5丁目・全2棟 新築一戸建 1号棟の詳細情報

設備条件
  • 閑静な住宅地
  • 住宅性能保証付
設備(その他)
    -
駐車場/月額
有(1台)/0円
土地権利
所有権
国土法届出
不要
用途地域
第一種低層住居専用/第一種中高層住居専用
取引態様
仲介
引渡し
2026年7月下旬

所沢市中新井5丁目・全2棟 新築一戸建 1号棟で募集中の物件

  1. ~全室南向き・2面採光~

    28.54坪 (94.36㎡)

    3,680万円(128.94万円/坪)

周辺施設

  • 所沢中新井郵便局の画像

    郵便局

    所沢中新井郵便局

    480m(6分)

  • 西友所沢ニュータウン店の画像

    スーパー

    西友所沢ニュータウン店

    480m(6分)

  • マルハ幼稚園の画像

    幼稚園

    マルハ幼稚園

    530m(7分)

  • 陽明保育園の画像

    保育園

    陽明保育園

    530m(7分)

  • 所沢市立 中央小学校の画像

    小学校

    所沢市立 中央小学校

    880m(11分)

  • ヤオコー所沢北原店の画像

    スーパー

    ヤオコー所沢北原店

    1260m(16分)

  • 所沢市立 美原中学校の画像

    中学校

    所沢市立 美原中学校

    2640m(33分)

近隣の物件

  1. 所沢市大字牛沼

    3LDK (80.39㎡)

    3,480万円

  2. 所沢市東新井町

    4LDK (79.49㎡)

    2,980万円

  3. 所沢市若狭4丁目

    3LDK (111.77㎡)

    3,380万円

  4. 所沢市大字下安松

    3LDK (84.87㎡)

    3,780万円

よく見られている物件

  1. 所沢市所沢新町

    3LDK (88.74㎡)

    3,430万円

  2. 所沢市大字山口

    4LDK (105.16㎡)

    4,380万円

  3. 入間市豊岡2丁目

    4LDK (101.65㎡)

    2,400万円

  4. 入間市東藤沢8丁目

    4LDK (105.16㎡)

    3,699万円

所沢市中新井5丁目・全2棟 新築一戸建 1号棟

お気軽にお問い合わせください

無料お問い合わせ

株式会社アクシアホーム

04-2937-3330

09:00~18:30

(休:水曜日(不定休日あり))