113件(会員物件 8件)
-
パノラマ
NEW
3,290万円
- / 87.77㎡ / 4LDK /築1年 /2階建
- 駐車2台可
- 都市ガス
- バリアフリー
- システムキッチン
- カウンターキッチン
- 食器洗い乾燥機
下山口駅徒歩17分、小手指駅からバス便利用も可、ゆったり過ごせる落ち着いた住環境の全3棟現場です。
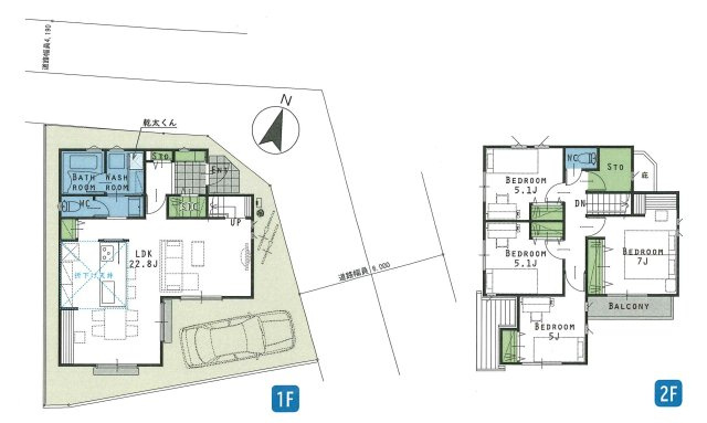
2号棟はLDK12.9帖、便利な小屋裏収納あり、主寝室7帖、室内に明るい日差しが差し込む全室2面採光の4LDK。
建物設備充実、駐車並列2台可、椿峰小学校まで徒歩3分ですので、小さなお子様の通学も安心です。
詳細などアクシアホーム所沢店までお気軽にお問い合わせ下さいませ。 -
パノラマ
NEW
3,290万円
- / 87.77㎡ / 3LDK /築1年 /2階建
- 駐車2台可
- 都市ガス
- バリアフリー
- システムキッチン
- カウンターキッチン
- 食器洗い乾燥機
下山口駅徒歩17分、小手指駅からバス便利用も可、ゆったり過ごせる落ち着いた住環境
1号棟は畳コーナー3帖付LDK13.6帖、便利な小屋裏収納あり、主寝室7帖、室内に明るい日差しが差し込む全室2面採光の3LDK。
建物設備充実、駐車並列2台可、椿峰小学校まで徒歩3分ですので、小さなお子様の通学も安心です。
詳細などアクシアホーム所沢店までお気軽にお問い合わせ下さいませ。 -
パノラマ
新築
NEW
3,899万円
12月5日 値下げ
- / 110.44㎡ / 3LDK /新築 /3階建
- 駐車2台可
- 都市ガス
- 陽当り良好
- バリアフリー
- ウォークインクロゼット
- システムキッチン
南道路に面し日当たり良好、並列駐車2台可能(車種制限あり)な全2棟現場になります。
2号棟は家族でゆったり過ごせる2階リビング階段LDK19.2帖、車を雨風から守ってくれるガレージもございます。
建物設備充実、小学校・スーパーまで徒歩10分圏内なのも嬉しいですね。
詳細などアクシアホーム所沢店までお気軽にお問い合わせ下さいませ。 -
新築
NEW
2,690万円
- / 83.42㎡ / 3LDK /新築 /2階建
- 駐車2台可
- プロパンガス
- バリアフリー
- システムキッチン
- カウンターキッチン
- 浴室乾燥機
広々LDK15帖、全居室6帖以上・南向きの3LDK!カースペース2台
家事動線のよい対面キッチン!浴室暖房乾燥機・人感センサー付玄関灯など設備充実!
詳細などアクシアホーム所沢店までお気軽にお問い合わせ下さいませ。 -
新築
NEW
3,380万円
- / 89.18㎡ / 4LDK /予定 /2階建
- 都市ガス
- バリアフリー
- システムキッチン
- カウンターキッチン
- 食器洗い乾燥機
- 浴室乾燥機
下山口駅徒歩14分・西所沢駅徒歩19分、開放感ある東西両面道路のお住まいです。
リビング階段LDK17.7帖。季節物などの収納に便利な固定階段小屋裏収納あり、室内に明るい日差しが差し込む全室2面採光の4LDK。
制震・耐震装置搭載、建物設備も充実しており、毎日快適にお過ごし頂けます。
詳細などアクシアホーム所沢店までお気軽にお問い合わせ下さいませ。 -
新築
NEW
4,999万円
- / 105.60㎡ / 4LDK /新築 /2階建
- 都市ガス
- 陽当り良好
- 床暖房
- ウォークインクロゼット
- システムキッチン
- カウンターキッチン
南向きの広々ゆったりLDK23.7帖、2階に洋室4室配置した4LDK!
カースペース並列4台(車種による)も魅力!
前面道路広々6mに面した約50坪のゆったりとした土地です。
周辺環境と併せて一度現地をご覧になってみませんか?
詳細などアクシアホーム所沢店までお気軽にお問い合わせ下さいませ。 -
新築
NEW
3,380万円
- / 82.62㎡ / 3LDK /新築 /2階建
- プロパンガス
- バリアフリー
- システムキッチン
- カウンターキッチン
- 浴室乾燥機
- 浴室1坪以上
西武池袋線・狭山線「西所沢駅」徒歩6分のお住まいです。
リビング階段2階LDK14帖、季節物などの収納に便利な固定階段小屋裏あり、全居室収納付の3LDK。
車庫1台分あり、建物設備も充実しております。
詳細などアクシアホーム所沢店までお気軽にお問い合わせ下さいませ。 -
新築
NEW
3,680万円
- / 78.66㎡ / 3LDK /予定 /2階建
- 駐車2台可
- 都市ガス
- バリアフリー
- システムキッチン
- カウンターキッチン
- 浴室乾燥機
西武池袋線・新宿線「所沢駅」徒歩18分の全4棟現場になります。
3号棟は家族でゆったり過ごせるリビング階段LDK15.2帖、室内に明るい日差しが差し込む全室2面採光の3LDK。
建物設備充実、縦列駐車2台可、小学校・中学校・スーパーまで徒歩10分圏内なのも嬉しいですね。
詳細などアクシアホーム所沢店までお気軽にお問い合わせ下さいませ。 -
新築
NEW
3,880万円
- / 78.87㎡ / 3LDK /予定 /2階建
- 都市ガス
- バリアフリー
- システムキッチン
- カウンターキッチン
- 浴室乾燥機
- 浴室1坪以上
西武池袋線・新宿線「所沢駅」徒歩18分の全4棟現場になります。
4号棟は家族でゆったり過ごせるLDK16.6帖、室内に明るい日差しが差し込む全室2面採光の3LDK。
建物設備充実、小学校・中学校・スーパーまで徒歩10分圏内なのも嬉しいですね。
詳細などアクシアホーム所沢店までお気軽にお問い合わせ下さいませ。 -
新築
NEW
4,580万円
- / 91.90㎡ / 3LDK /予定 /2階建
- 駐車2台可
- 都市ガス
- バリアフリー
- ウォークインクロゼット
- システムキッチン
- カウンターキッチン
西武池袋線・新宿線「所沢駅」徒歩18分の全4棟現場になります。
1号棟は家族でゆったり過ごせるLDK16.5帖、WIC付主寝室7.7帖、全居室6帖以上、室内に明るい日差しが差し込む全室2面採光の3LDK。
建物設備充実、並列駐車2台可、小学校・中学校・スーパーまで徒歩10分圏内なのも嬉しいですね。
詳細などアクシアホーム所沢店までお気軽にお問い合わせ下さいませ。 -
新築
NEW
3,980万円
- / 77.01㎡ / 3LDK /予定 /2階建
- 都市ガス
- バリアフリー
- システムキッチン
- カウンターキッチン
- 浴室乾燥機
- 浴室1坪以上
西武池袋線・新宿線「所沢駅」徒歩18分の全4棟現場になります。
2号棟は家族でゆったり過ごせるリビング階段LDK15帖、室内に明るい日差しが差し込む全室2面採光の3LDK。
建物設備充実、小学校・中学校・スーパーまで徒歩10分圏内なのも嬉しいですね。
詳細などアクシアホーム所沢店までお気軽にお問い合わせ下さいませ。 -
NEW
4,980万円
- / 84.25㎡ / 3LDK /築5年 /2階建
- 都市ガス
- 浴室1坪以上
- 室内洗濯機置場
- バルコニー
- 電気有
- コンロ2口以上
再開発の進む所沢駅から徒歩11分、商業施設が充実した便利な住環境です♪
ゆとりある全居室6帖以上の3LDKのお住まいになります。
周辺環境と合わせてぜひ一度現地をご覧になりませんか?
詳細などアクシアホームまでお気軽にお問い合わせください。 -
パノラマ
新築
NEW
4,880万円
- / 109.36㎡ / 3LDK /新築 /2階建
- 駐車2台可
- 都市ガス
- バリアフリー
- ウォークインクロゼット
- ウォークインシューズクロゼット
- システムキッチン
注文住宅をお考えの方にもおすすめのお洒落な建売住宅です。
収納も豊富なので、お部屋をすっきり整理整頓できますよ♪
まずは現地をご覧いただきながら詳しいご説明をさせていただければと思います。
お問い合わせお待ちしております。 -
新築
NEW
4,780万円
- / 94.60㎡ / 2LDK+S(納戸) /新築 /2階建
- 都市ガス
- 陽当り良好
- バリアフリー
- ウォークインクロゼット
- システムキッチン
- カウンターキッチン
小手指駅・新所沢駅徒歩15分、南側開発道路の日当たり良好な全6棟現場になります。
2号棟は家族でゆったり過ごせるLDK16.1帖、WIC付主寝室8.4帖、居室としても利用出来る納戸5.2帖もございます。
耐震・制震装置搭載、小学校・スーパーまで徒歩10分圏内の好立地も魅力です。
詳細などアクシアホーム所沢店までお気軽にお問い合わせ下さいませ。 -
新築
NEW
4,280万円
- / 91.91㎡ / 3LDK /新築 /2階建
- 駐車2台可
- 都市ガス
- 陽当り良好
- バリアフリー
- システムキッチン
- カウンターキッチン
小手指駅・新所沢駅徒歩15分、南側開発道路の日当たり良好な全6棟現場になります。
6号棟は家族でゆったり過ごせるLDK17.5帖、主寝室7.5帖、全居室収納付の3LDK。
耐震・制震装置搭載、小学校・スーパーまで徒歩10分圏内の好立地も魅力です。
詳細などアクシアホーム所沢店までお気軽にお問い合わせ下さいませ。 -
会員限定
-
会員限定
-
NEW
3,890万円
- / 89.20㎡ / 3LDK /築6年 /2階建
- オール電化
- 床暖房
- バリアフリー
- ウォークインシューズクロゼット
- システムキッチン
- カウンターキッチン
室内大変きれいにお使いです、是非直接ご覧ください!
開放感のある吹き抜けのリビングダイニングがとても素敵ですよ♪
収納スペースも広く、こだわりの注文住宅!
周辺環境と合わせてぜひ一度現地をご覧になりませんか?詳細などアクシアホーム所沢店までお気軽にお問い合わせ下さいませ。 -
新築
NEW
3,980万円
- / 104.43㎡ / 4LDK+S(納戸) /予定 /2階建
- 都市ガス
- バリアフリー
- ウォークインシューズクロゼット
- システムキッチン
- カウンターキッチン
- 食器洗い乾燥機
リビングの広さと収納の豊富さが魅力の4SLDK。
暮らしを快適にしてくれる充実した設備もポイントです!
まずは現地をご覧いただきながら詳しいご説明をさせていただければと思います。
お問い合わせお待ちしております。 -
新築
NEW
2,390万円
11月29日 値下げ
- / 70.79㎡ / 3LDK /新築 /2階建
- 駐車2台可
- 都市ガス
- バリアフリー
- システムキッチン
- カウンターキッチン
- 浴室乾燥機
南向きのLDK13.1帖、全居室2面採光の3LDK!カースペース並列2台(車種による)
近隣にはスーパーやコンビニなどがある生活便利な住環境が整っております。
詳細などアクシアホーム所沢店までお気軽にお問い合わせ下さいませ。
-
新築
NEW
4,880万円
- / 110.13㎡ / 3LDK+S(納戸) /新築 /2階建
- 駐車2台可
- 都市ガス
- バリアフリー
- ウォークインクロゼット
- システムキッチン
- カウンターキッチン
小手指駅よりバス便利用可、下山口駅徒歩9分の全2棟現場になります。
A号棟はリビング階段LDK20.3帖、開放感ある屋上ルーフバルコニーあり、季節物などの収納に便利な2.5帖納戸付、WIC付主寝室7帖の3SLDK。
並列駐車2台可、建物設備も充実しております。
詳細などアクシアホーム所沢店までお気軽にお問い合わせ下さいませ。 -
新築
NEW
4,980万円
- / 112.82㎡ / 3LDK /新築 /2階建
- 駐車2台可
- 都市ガス
- バリアフリー
- ウォークインクロゼット
- システムキッチン
- カウンターキッチン
小手指駅よりバス便利用可、下山口駅徒歩9分の全2棟現場になります。
B号棟はリビング階段LDK20.2帖、開放感ある屋上ルーフバルコニーあり、WIC付主寝室7.5帖の3LDK。
並列駐車2台可、建物設備も充実しております。
詳細などアクシアホーム所沢店までお気軽にお問い合わせ下さいませ。 -
新築
NEW
2,470万円
- / 68.04㎡ / 2LDK /予定 /2階建
- 都市ガス
- 陽当り良好
- バリアフリー
- システムキッチン
- カウンターキッチン
- 浴室乾燥機
下山口駅徒歩11分の全2棟現場になります。
1号棟はリビング階段LDK15.2帖、季節物などの収納に便利な固定階段小屋裏収納あり、全居室収納付、室内に明るい日差しが差し込む全室2面採光の2LDK。
建物設備充実、日当たり・通風良好な北西角地なのも嬉しいですね。
詳細につきましてはアクシアホームまでお問合せ下さいませ。 -
新築
NEW
2,870万円
- / 77.76㎡ / 3LDK+S(納戸) /予定 /2階建
- 都市ガス
- 陽当り良好
- バリアフリー
- システムキッチン
- カウンターキッチン
- 浴室乾燥機
下山口駅徒歩11分の全2棟現場になります。
2号棟はリビング階段LDK15.7帖、季節物などの収納に便利な3帖納戸あり、全居室収納付、室内に明るい日差しが差し込む全室2面採光の3SLDK。
建物設備充実、日当たり・通風良好な南西角地なのも嬉しいですね。
詳細につきましてはアクシアホームまでお問合せ下さいませ。 -
パノラマ
新築
NEW
3,280万円
- / 80.16㎡ / 3LDK /新築 /2階建
- 都市ガス
- バリアフリー
- システムキッチン
- カウンターキッチン
- 食器洗い乾燥機
- 浴室乾燥機
デザイン性の高い建物と機能的な間取りを兼ね備えた、魅力的な建売住宅です。
収納スペースが豊富なので、荷物の多い方にもおすすめですよ♪
まずは現地をご覧いただきながら詳しいご説明をさせていただければと思います。
お問い合わせお待ちしております! -
NEW
4,500万円
- / 96.88㎡ / 3LDK /築6年 /2階建
- 駐車2台可
- 都市ガス
- 床暖房
- ウォークインクロゼット
- ウォークインシューズクロゼット
- システムキッチン
デザイン性・機能性を重視したこだわりの中古住宅です!
スーパーやコンビニが近い、便利な立地もポイントですよ♪
まずは実際の室内をご覧いただきながら詳しいご説明をさせていただければと思います。
お問合せお待ちしております♪ -
パノラマ
NEW
3,199万円
- / 93.36㎡ / 4LDK /築7年 /2階建
- プロパンガス
- リフォーム済
- システムキッチン
- カウンターキッチン
- 食器洗い乾燥機
- 浴室1坪以上
西所沢駅徒歩10分、平成30年9月築の築浅物件です。
全居室洋室・収納付き・二面採光の4LDK、ビルトインガレージございます。
現況空家につき、是非この機会に一度ご見学下さいませ。
詳細などアクシアホーム所沢店までお気軽にお問い合わせ下さいませ。 -
新築
NEW
3,390万円
- / 84.92㎡ / 4LDK /新築 /2階建
- 駐車2台可
- 都市ガス
- バリアフリー
- システムキッチン
- カウンターキッチン
- 浴室乾燥機
【全2棟・B号棟】LDK14帖、全居室南向きの4LDK!カースペース2台(車種による)
2階に備蓄倉庫あり、各居室収納スペース充実!泉小学校近く、通学安心。
詳細などアクシアホーム所沢店までお気軽にお問い合わせ下さいませ。
-
NEW
1,980万円
- / 114.54㎡ / 5DK+2S(納戸) /築30年 /3階建
- プロパンガス
- 陽当り良好
- リフォーム済
- ウォークインクロゼット
- 室内洗濯機置場
- バルコニー
空室につき気兼ねなくご見学いただけます!
3階建て収納豊富な5DK、是非直接ご覧になってみませんか?
周辺環境と合わせてご案内させていただきます。
詳細などアクシアホーム所沢店までお気軽にお問い合わせ下さいませ。
小手指駅よりバス便利用可、日当たり・通風良好な東南角地のお住まいです。
家族でゆったり過ごせるLDK16帖、主寝室8帖、全居室収納付の4LDK。
制震装置搭載、並列駐車2台可、建物設備も充実しております。
詳細につきましてはアクシアホームまでお問合せ下さいませ。